This furnished house is within walking distance to Waurn Ponds Uni! This huge house has plenty of off-street parking, huge lounge area, spacious kitchen & large pantry.
*** Please select “Contact Agent” or “Book Inspection” if you wish to inspect. We will then contact you to arrange a time***
Features:
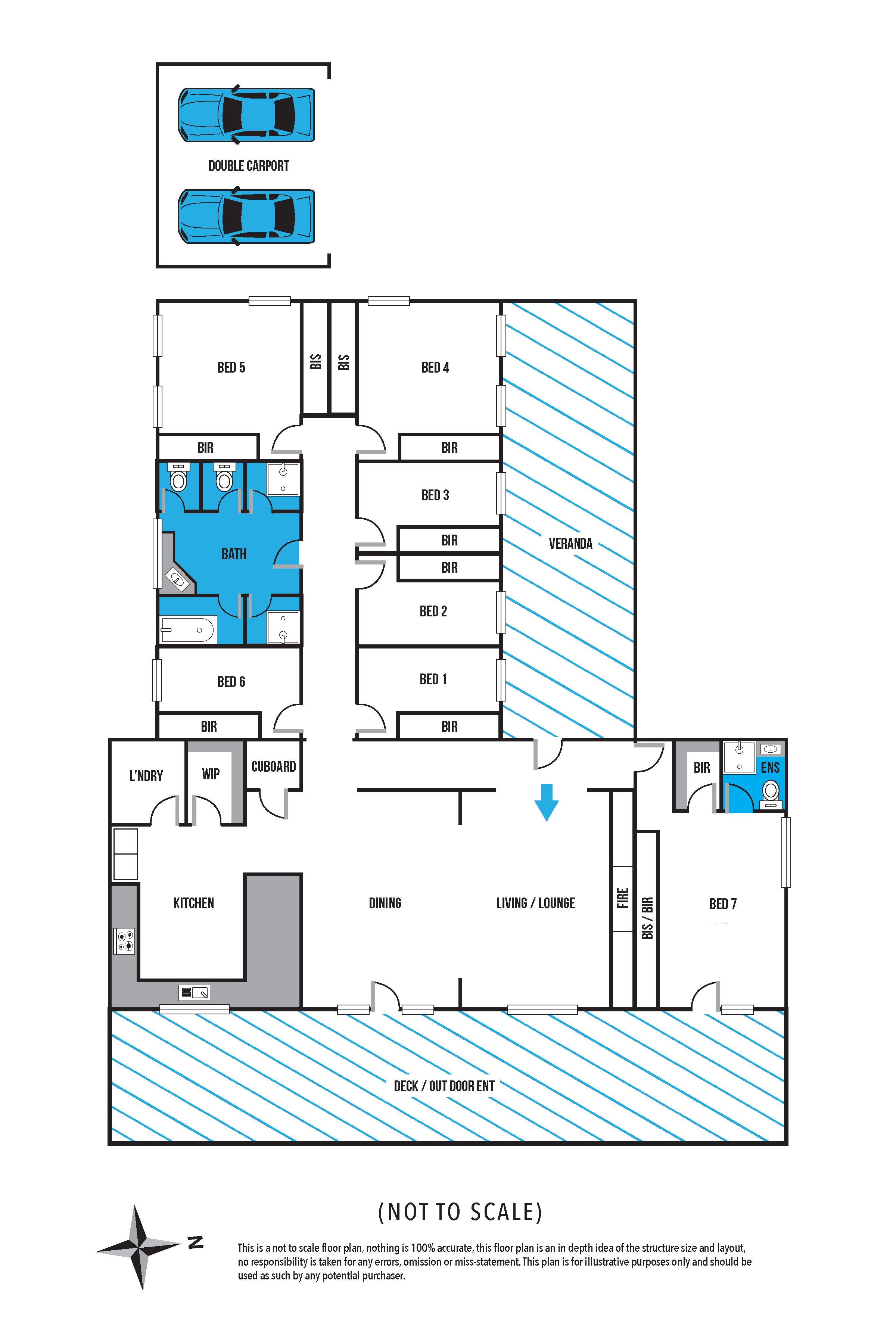
– 7 Bedrooms fully furnished house for rent
– Fully furnished including 7 double beds, cooking utenlsises, washing machines, fridges etc
– Central cooling & heating throughout the whole house including each room
– Bus stop directly out the front
– 10 min walk to university
– Built in robes in each room
– Beds, desk & office chair included in your room
– 3 showers and a bath (includes one ensuite)
– 3 toilets
– Huge decked entertainment area
– Plenty of off street parking
– Lockable bedroom and bathroom doors
– 7 Bedroom House
– Excludes all bills.
Book an Inspection:
Send us an enquiry through ‘Email Agent’ and we will notify you of all available inspections as soon as possible. Please ensure you register for inspections as changes may occur.